Anschluss Mauerwerk Geneigtes Dach Mauerwerk Dach Dach Mauerwerk Dachkonstruktion

Anschluss Mauerwerk Geneigtes Dach Mauerwerk Dach Dach Mauerwerk Dachkonstruktion

Anschluss Mauerwerk Geneigtes Dach Mauerwerk Dach Mauerwerk Dach Dachkonstruktion

Anschluss Mauerwerk Geneigtes Dach Mauerwerk Dach Mauerwerk Dach Dachkonstruktion

Vertikalsschnitt Zweischaliges Mauerwerk Mit Dachtraufe Ohne Uberstand Mauerwerk Dach Dachkonstruktion

Vertikalsschnitt Zweischaliges Mauerwerk Mit Dachtraufe Ohne Uberstand Mauerwerk Dach Dachkonstruktion

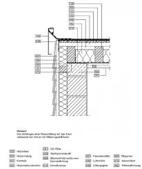
Anschluss Mauerwerk Geneigtes Dach Mauerwerk Dach Baunetz Wissen Mauerwerk Dach Mauer

Anschluss Mauerwerk Geneigtes Dach Mauerwerk Dach Baunetz Wissen Mauerwerk Dach Mauer

Ringanker Knupfen Peripheral Anchorage Anker Heimwerken Bilder

Ringanker Knupfen Peripheral Anchorage Anker Heimwerken Bilder

Https Www Bauexpertenforum De Attachments Dachaufbau Jpg 34927 Dachaufbau Holzbau Bau

Https Www Bauexpertenforum De Attachments Dachaufbau Jpg 34927 Dachaufbau Holzbau Bau

Https Www Bauexpertenforum De Attachments Dachaufbau Jpg 34927 Dachaufbau Holzbau Bau >

Ringbalkenschalung Ringanker Holzmann Rekord Grosser Restbestand In Kreis Ostholstein Eutin Heimwerken Heimwerkerb Schalung Ebay Kleinanzeigen Heimwerken

Ringbalkenschalung Ringanker Holzmann Rekord Grosser Restbestand In Kreis Ostholstein Eutin Heimwerken Heimwerkerb Schalung Ebay Kleinanzeigen Heimwerken

Dachstuhl Konstruktionsformen Und Tragweise Dach Dachstuhl Steinhauser

Dachstuhl Konstruktionsformen Und Tragweise Dach Dachstuhl Steinhauser

Gestern Haben Wir Mal Eben Den Grundstein Fur Das Fehlende Dach Der Waschkaue Gelegt Und Einen Beton Ringanker Gegossen Damit E Fair Grounds Travel Grounds

Gestern Haben Wir Mal Eben Den Grundstein Fur Das Fehlende Dach Der Waschkaue Gelegt Und Einen Beton Ringanker Gegossen Damit E Fair Grounds Travel Grounds

Pin Von Lisa Walder Auf Assemble Disassemble Fenster Detail Lehmputz Stampflehm

Pin Von Lisa Walder Auf Assemble Disassemble Fenster Detail Lehmputz Stampflehm

Pin Auf Abbruchunternehmen Hofmann

Pin Auf Abbruchunternehmen Hofmann

Balkenlage Mit Zellulose Isoliert Balken

Balkenlage Mit Zellulose Isoliert Balken

Unsere Datsche 3 Teil Datsche Gartenhaus Schlafboden

Unsere Datsche 3 Teil Datsche Gartenhaus Schlafboden

Sparren Garagen Flachdach 300x225 Jpg 300 225 Garage Dach Garage Bauen Haus Mit Garage

Sparren Garagen Flachdach 300x225 Jpg 300 225 Garage Dach Garage Bauen Haus Mit Garage

Holzbearbeitung Dufter Style At Home Fassade Haus Haus Aussen

Holzbearbeitung Dufter Style At Home Fassade Haus Haus Aussen

Workshop Baustelle Und Dauerausstellung Zugleich Ist Das Haus Der Zukunft Projekt Des Asbn Gefordert Vom Bm Vit Im Monatsabstand Fin Casas Construccion Pajas

Workshop Baustelle Und Dauerausstellung Zugleich Ist Das Haus Der Zukunft Projekt Des Asbn Gefordert Vom Bm Vit Im Monatsabstand Fin Casas Construccion Pajas

Terrassendielen Verlegen Selbst De Terrassendielen Holzterrasse Terrassendielen Verlegen

Terrassendielen Verlegen Selbst De Terrassendielen Holzterrasse Terrassendielen Verlegen

Fehler Haus Architektur Bauernhof

Fehler Haus Architektur Bauernhof

Pin Von Thomas Jung Auf Balkon Terrasse Balkon Haus Dachterrasse Abdichten

Pin Von Thomas Jung Auf Balkon Terrasse Balkon Haus Dachterrasse Abdichten

Heinz Bienefeld House Babanek Bruhl 1997 Via Ainfantek Ainfantek Babanek Bienefeld Bruhl Heinz Architekturfotografie Architektur Aussengestaltung

Heinz Bienefeld House Babanek Bruhl 1997 Via Ainfantek Ainfantek Babanek Bienefeld Bruhl Heinz Architekturfotografie Architektur Aussengestaltung

Image011 Jpg 708 364 Trees To Plant Plants Tree

Image011 Jpg 708 364 Trees To Plant Plants Tree

Ratgeber Stelzlager Von Funf Herstellern Ab 12mm Hohe Bis 300mm Sanierung Von Terrasse Und Balkns Stelzenlager Stelzlager Stelzlager Stelzen Lager

Ratgeber Stelzlager Von Funf Herstellern Ab 12mm Hohe Bis 300mm Sanierung Von Terrasse Und Balkns Stelzenlager Stelzlager Stelzlager Stelzen Lager

Referenzen Vom Abbruchunternehmen Hofmann Demontage Asbest Zementplatten Dach Gossersweiler Dach Zement Baustelle

Referenzen Vom Abbruchunternehmen Hofmann Demontage Asbest Zementplatten Dach Gossersweiler Dach Zement Baustelle

Haus In Holzrahmenbauweise Chiemgau Musi Haus Style At Home Baustil

Haus In Holzrahmenbauweise Chiemgau Musi Haus Style At Home Baustil

Epdm Teich Folie Teichfolien Teichbau Dach Dammen

Epdm Teich Folie Teichfolien Teichbau Dach Dammen

Pin Auf Anhanger Designanhanger Unikate Verschiedenes

Pin Auf Anhanger Designanhanger Unikate Verschiedenes

Kuche Mit Zementfliesen Stern 3 Und Mosaikboden Mosaik Zementfliesen Fliesen

Kuche Mit Zementfliesen Stern 3 Und Mosaikboden Mosaik Zementfliesen Fliesen

Mauerabdeckung Satteldach Grau 49 0 X 3 5 5 5 3 5 X 20 0cm Bei Hornbach Kaufen Mauerabdeckung Stutzmauer Steine Mauerabdeckung Beton

Mauerabdeckung Satteldach Grau 49 0 X 3 5 5 5 3 5 X 20 0cm Bei Hornbach Kaufen Mauerabdeckung Stutzmauer Steine Mauerabdeckung Beton

Ebn Betonwerk Neumunster Gmbh Schalungssteine Schalung Neumunster Gartenmauer

Ebn Betonwerk Neumunster Gmbh Schalungssteine Schalung Neumunster Gartenmauer

Pin Von Lisa Walder Auf Assemble Disassemble Fenster Detail Lehmputz Stampflehm

Pin Von Lisa Walder Auf Assemble Disassemble Fenster Detail Lehmputz Stampflehm

Pin Auf Abbruchunternehmen Hofmann

Pin Auf Abbruchunternehmen Hofmann

Source : pinterest.com